Технические характеристики сухого трансформатора ТСЗЛ 630/10/0,4/IP31/Dy-h11/Al с литой изоляцией.
- Производитель: Востокэнерготранс;
- Концепция конструкции: Стержневой;
- Тип: Силовой.
- Вид: Трехфазный.
- Тип по назначению: Понижающий.
- Материал обмотки: Алюминий.
- Охлаждение: Воздушное AN/AF.
- Степень защиты кожуха: IP31 ГОСТ 14254–2015.
- Схема и группа соединения обмоток: Dy-h11.
- Номинальная мощность: 630 кВА.
- Номинальное высшее напряжение (ВН): 10 кВ.
- Номинальное низшее напряжение (НН): 0.4 кВ.
- Напряжение короткого замыкания Uкз ± 10: 6%.
- Класс пожаробезопасности: F1 ГОСТ Р 54827−2011.
- Класс нагревостойкости изоляции: F (155°C) ГОСТ 12.1.044−91.
- Климатическое исполнение: У3 или УХЛ3 ГОСТ 15150–69.
- Класс стойкости к воздействиям окружающей среды: Е2 ГОСТ 52719–2007.
- Ток lхх, ±30%: 0.9%.
- Уровень шума: 52 дВ (А).
- Частота питающей сети: 50 Гц.
- Переключение ответвлений (ПБВ): -+2×2,5=5%.
- Потери холостого хода (120°C) ± 15%: 1300 Вт.
- Потери короткого замыкания (120°C) ± 10%: 5960 Вт.
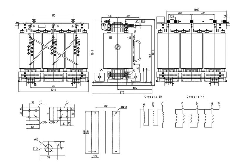
- Колея колес: 660*910 мм.
- Номинальный ток обмотки (ВН): 36 А.
- Номинальный ток обмотки (НН): 909 А.
- Габариты трансформатора: 1240*970*1016 мм.
- вес тр-ра без кожуха: 1475 кг.
- Габариты кожуха: 1600*1300*1400 мм.
- вес тр-ра в кожухе: 1605 кг.
- Страна производитель: Россия.
Чертеж сухого трансформатора ТСЗЛ 630 ква с литой изоляцией.


Типовой комплект поставки сухого трансформатора 630 ква:
•Трансформатор.
•Транспортные колёса — ролики.
•Паспорт на трансформатор (с заключением ОТК).
•Сертификат сейсмостойкости (до 9 баллов)
•Сертификат соответствия ГОСТ Р12.1.004−91 «Система стандартов безопасности труда. Пожарная безопасность».
•Цифровой блок температурного контроля BWDK с терморегулятором и датчиком температуры обмоток (4 шт) выполняющий роль шкафа теплового контроля.
•Вентиляторы.
•Комплект эксплуатационной документации на блок температурного контроля.
Гарантийные обязательства: 60 месяцев с момента передачи товара покупателю.
Трансформатор сухой ТСЗЛ 630/10/0,4/IP31/Dy-h11/Al можно купить в компании «Востокэнерготранс» из г. Казань. Трансформатор имеет гарантию 60 месяцев с момента его подключения. Срок изготовления «на заказ» 45−60 календарных дней. Либо отгрузка в течение 5 календарных дней со склада. Наличие сухих трансформаторов на складе уточняйте.
Тип объявления:
Срок размещения:
Рубрика:











