Технические характеристики трансформатора ТСЗЛ/1000/6/0.4/D/Yн-11/IP31/Al с литой изоляцией.
- Производитель: Востокэнерготранс
- •Тип: ТСЗЛ (трехфазный, сухого типа, защищённый с литой изоляцией)
- •Концепция конструкции: Стержневой
- •Номинальная мощность, кВа: 1000
- •Номинальное напряжение на стороне ВН, кВ: 6
- •Номинальное напряжение на стороне НН, кВ: 0.4
- •Материал обмотки: Алюминий
- •Напряжение короткого замыкания Uкз (%) ± 10%: 6
- •Частота питающей сети, Гц: 50
- •Степень защиты кожуха (корпус): IP31
- •Класс нагревостойкости изоляции: F (155°C)
- •Переключение без возбуждения (ПБВ), %: ±2×2,5
- •Схема и группа соединения обмоток: D/Yн-11 (треугольник-звезда)
- •Уровень шума дB (A): Менее 70
- •Охлаждение: Естественное С (AN/AF)
- •Высота установки над уровнем моря, м: До 1000
- •Потери холостого хода (120°C) ± 15%, Вт: 1770
- •Потери короткого замыкания 120 °C ± 10%, Вт: 8130
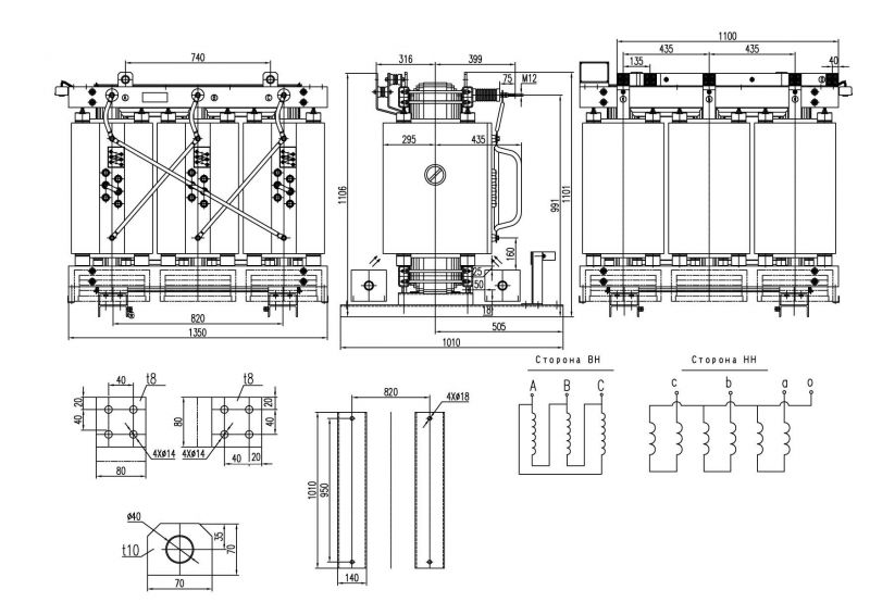
- •Габариты трансформатора, мм: 1350*1010*1101
- •Колея колес (или опор), мм: 820*950
- •Вес трансформатора без кожуха ± 10%, кг: 2090
- •Климатическое исполнение: УЗ — умеренный климат в закрытых помещениях с вентиляцией
- •Тип вывода ВН и НН: Шина, либо Кабель
- •Расположение выводов ВН: по согласованию с заказчиком
- •Расположение выводов НН: по согласованию с заказчиком.

- •Материал выводов НН: алюминий, либо медь
- •Габариты кожуха: 1700*1350*1500 мм
- •Вес трансформатора с кожухом ± 10%, кг: 2270
* - Точные размеры, а также подлежащие измерению фактические параметры и вес указываются в паспорте трансформатора.
Комплект поставки сухого трансформатора ТСЗЛ 1000 ква с литой изоляцией :
- •Трансформатор в кожухе
- •Транспортные колёса — ролики
- •Паспорт на трансформатор (с заключением ОТК)
- •Сертификат сейсмостойкости (до 9 баллов)
- •Сертификат соответствия ГОСТ Р12.1.004−91 «Система стандартов безопасности труда. Пожарная безопасность»
- •Цифровой блок температурного контроля BWDK с терморегулятором и датчиком температуры обмоток (3−4шт) выполняющий роль шкафа теплового контроля
- •Вентиляторы.
- •Комплект эксплуатационной документации на блок температурного контроля.
Гарантийные обязательства: 60 месяцев с момента передачи товара покупателю.
Чертеж сухого трансформатора ТСЗЛ 1000 ква с литой изоляцией прилагается.


Купить сухой трансформатор 1000 ква с литой изоляцией у производителя Востокэнерготранс. Работа напрямую с производителем вы покупаете надежный и высокотехнологичный товар, а так же значительно экономите на покупке.
Тип объявления:
Срок размещения:
Рубрика:











