Технические характеристики сухого трансформатора с литой изоляцией ТСЗЛ/2500/10/0.4/D/Yн-11/IP31/Al
- •Производитель: Востокэнерготранс
- •Тип: ТСЗЛ (трехфазный, сухого типа , защищённый с литой изоляцией)
- •Концепция конструкции: Стержневой
- •Номинальная мощность, кВа: 2500
- •Номинальное напряжение на стороне ВН, кВ: 10
- •Номинальное напряжение на стороне НН, кВ: 0.4
- •Материал обмотки: Алюминий
- •Напряжение короткого замыкания Uкз(%) ± 10%: 6
- •Частота питающей сети, Гц: 50
- •Степень защиты кожуха (корпус): IP31
- •Класс нагревостойкости изоляции: F(155°C) •Класс стойкости к воздействиям окружающей среды Е2 ( по ГОСТ 52719-2007)
- •Переключение без возбуждения (ПБВ), %: ±2х2,5
- •Схема и группа соединения обмоток: D/Yн-11 (треугольник-звезда)
- •Уровень шума дB(A): Менее 70
- •Охлаждение: Естественное AN/AF
- •Высота установки над уровнем моря, м: До 1000
- •Потери холостого хода ± 15%, Вт: 3600
- •Потери короткого замыкания 120°C ± 10%, Вт: 17170
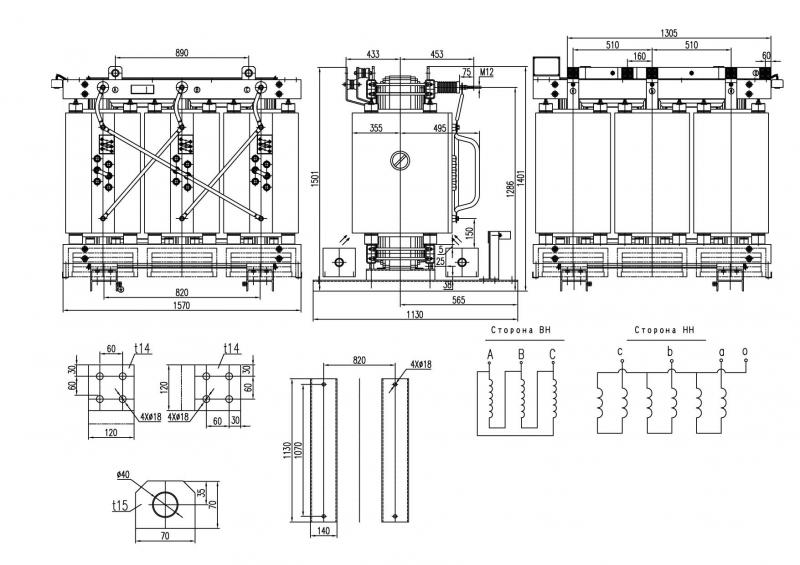
- •Габариты трансформатора, мм: 1570*1130*1401
- •Колея колес (или опор), мм: 820*1070
- •Вес трансформатора без кожуха ± 10%, кг: 4065
- •Климатическое исполнение: УХЛЗ - неотапливаемые помещения с возможной конденсацией
- •Тип вывода ВН и НН: Шина, либо Кабель
- •Расположение выводов ВН: по согласованию с заказчиком
- •Расположение выводов НН: по согласованию с заказчиком

- •Материал выводов НН: алюминий, либо медь
- •Габариты кожуха: 1950*1450*1800 мм
- •Вес трансформатора с кожухом ± 10%, кг: 4315* - Точные размеры, а также подлежащие измерению фактические параметры и вес указываются в паспорте трансформатора.
Чертеж сухого трансформатора ТСЗЛ 2500 ква с литой изоляцией прилагается.

Типовая комплектация сухого трансформатора с литой изоляцией 2500 квА:
- •Трансформатор
- •Транспортные колёса - ролики
- •Паспорт на трансформатор (с заключением ОТК)
- •Сертификат сейсмостойкости (до 9 баллов)
- •Сертификат соответствия ГОСТ Р12.1.004-91 «Система стандартов безопасности труда. Пожарная безопасность»
- •Русифицированный цифровой блок температурного контроля BWDK с терморегулятором и датчиком температуры обмоток (4 шт) выполняющий роль шкафа теплового контроля
- •Вентиляторы 6 шт.
- •Комплект эксплуатационной документации на блок температурного контроля.
Гарантийные обязательства: 60 месяцев с момента передачи товара покупателю.
Купить сухой трансформатор 2500 ква с литой изоляцией у производителя Востокэнерготранс.
Наличие товара уточняйте у менеджера. Срок изготовления товара "на заказ" от 14 до 60 календарных дней.
Оплата 60% предоплата. 40% по готовности партии к отгрузке. )
Доставка товара до покупателя возможна как силами поставщика (за отдельную плату), так и силами покупателя (самовывоз).
Тип объявления:
Срок размещения:
Рубрика:











