Технические характеристики трансформатора ТСЛ/3150/6/0.4/D/Yн-11/IP00/Al с литой изоляцией:
- • Производитель: Востокэнерготранс
- •Тип: ТСЛ (трехфазный, сухого типа с литой изоляцией);
- •Концепция конструкции: Стержневой;
- •Номинальная мощность, кВа: 3150;
- •Номинальное напряжение на стороне ВН, кВ: 6;
- •Номинальное напряжение на стороне НН, кВ: 0.4;
- •Материал обмотки: Алюминий;
- •Напряжение короткого замыкания Uкз (%) ± 10%: Стандартное;
- •Частота питающей сети, Гц: 50;
- •Степень защиты кожуха (корпус): IP00;
- •Класс нагревостойкости изоляции: F (155°C);
- •Переключение без возбуждения (ПБВ), %: ±2×2,5;
- •Схема и группа соединения обмоток: D/Yн-11 (треугольник-звезда);
- •Уровень шума дB (A): Стандартный;
- •Охлаждение: Естественное С (AN/AF);
- •Высота установки над уровнем моря, м: До 1000;
- •Ток lхх, % ±30%: 0,4;
- •Потери холостого хода (120°C) ± 15%, Вт: 4267;
- •Потери короткого замыкания (120°C) ± 10%, Вт: 26677;
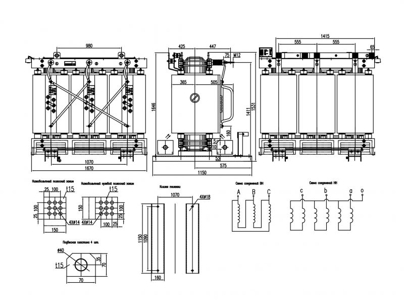
- •Габариты трансформатора, мм: 1670*1300*1531;
- •Колея колес (или опор), мм: 1070*1240;
- •Вес трансформатора без кожуха ± 10%, кг: 4780;
- •Климатическое исполнение: УЗ / УХЛ3;
- •Тип вывода ВН; НН: Шина
* - Точные размеры, а также подлежащие измерению фактические параметры и вес указываются в паспорте трансформатора.
Чертеж сухого трансформатора ТСЛ 3150 ква с литой изоляцией

Типовая комплектация трансформатора 3150 квА с литой изоляцией:
- •Трансформатор;
- •Транспортные колёса — ролики;
- •Паспорт на трансформатор (с заключением ОТК);
- •Сертификат соответствия ГОСТ Р12.1.004−91 «Система стандартов безопасности труда. Пожарная безопасность»;
- •Цифровой блок температурного контроля BWDK с терморегулятором и датчиком температуры обмоток (3 -4 шт) выполняющий роль шкафа теплового контроля;
- •Вентиляторы;
- •Комплект эксплуатационной документации на блок температурного контроля. Гарантийные обязательства: 60 месяцев с момента передачи товара покупателю.
- Сертификат сейсмостойкости (до 9 баллов)
Тип объявления:
Срок размещения:
Рубрика:











