Технические характеристики сухого трансформатора ТСЛ 1600/10/0,4/IP00/Dy-h11/Al с литой изоляцией.
- Производитель: Востокэнерготранс
- Концепция конструкции: Стержневой
- Тип: Силовой
- Вид: Трехфазный
- Тип по назначению: Понижающий
- Материал обмотки: Алюминий
- Охлаждение: Воздушное AN/AF
- Степень защиты кожуха: IP00 без кожуха ГОСТ 14254–2015
- Схема и группа соединения обмоток: Dy-h11
- Номинальная мощность: 1600 кВА
- Номинальное высшее напряжение (ВН): 10 кВ
- Номинальное низшее напряжение (НН): 0.4 кВ
- Напряжение короткого замыкания Uкз ± 10: 6%
- Класс пожаробезопасности: F1 ГОСТ Р 54827−2011
- Класс нагревостойкости изоляции: F (155°C) ГОСТ 12.1.044−91
- Климатическое исполнение: У3 или УХЛ3 ГОСТ 15150–69
- Класс стойкости к воздействиям окружающей среды: Е2 ГОСТ 52719–2007
- Ток lхх, ±30%: 0.9%
- Уровень шума: 58 дВ (А)
- Частота питающей сети: 50 Гц
- Переключение ответвлений (ПБВ): -+2×2,5=5%
- Потери холостого хода (120°C) ± 15%: 2450 Вт
- Потери короткого замыкания 120 °C ± 10%: 11730 Вт
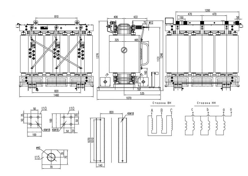
- Колея колес: 820*1010 мм
- Номинальный ток обмотки (ВН): 92 А
- Номинальный ток обмотки (НН): 2309 А
- Габариты трансформатора: 1460*1070*1246 мм
- вес тр-ра без кожуха6 2955 кг
- Габариты кожуха: 1850*1400*1800 мм
- Вес трансформатора в кожухе: 3155 кг
- Страна: Россия
Чертеж сухого трансформатора ТСЛ 1600 ква

Типовая комплектация трансформаторов ТСЛ 1600 квА:
- • Вентиляторы;
- Цифровой блок температурного контроля BWDK с терморегулятором и датчиком температуры обмоток (3 -4шт) выполняющий роль шкафа тепловой защиты;
- • Трансформатор;
- • Транспортные колёса — ролики;
- • Паспорт на трансформатор;
- • Сертификат сейсмостойкости (до 9 баллов);
- • Сертификат соответствия ГОСТ Р12.1.004-91 «Система стандартов безопасности труда. Пожарная безопасность».
Гарантийные обязательства 60 месяцев с момента передачи товара покупателю.Чертеж сухого трансформатора ТСЛ 1600 ква с литой изоляцией прилагается. Купить сухой трансформатор 1600 ква с литой изоляцией у производителя Востокэнерготранс.
Тип объявления:
Срок размещения:
Рубрика:











